当社にて印刷する上で問題ないか簡単なチェックはいたしますが、修正のサービスは行っていませんので、完全データでの入稿をお願いいたします。
仕様通りのデータではない場合、トラブルの原因となりますので必ずご確認ください。
①入稿データは、アドビイラストレーター(Adobe Illustrator)で作成してください。
(Mac版は8.0〜2020、Windows版は10.0〜2020)
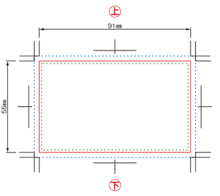
②テンプレートの赤のラインが名刺の仕上がりラインになります。
切れてはいけない文字や図柄は、
緑のラインより内側に配置してください。
赤と緑のラインの間は1.5mmです。
③上下方向の貼り間違いの無いようにご注意ください。
貼り間違えると、表と裏で上下が逆の名刺が
できあがることがあります。
※左図は、誤り見本です。
④カラー設定はCMYKで作成してください。
(特色・RGBでも印刷可能ですが、イメージと仕上がり色に違いが生じる場合があります)
⑤黒の部分は必ずK(ブラック)のみで作成してください。
(CMYKの掛け合わせで黒を表現した場合、にじむ場合があります。)
⑥白のオブジェクトにオーバープリントをかけないでください。
(白を透明と解釈し、下の色が印字されます。)
⑦文字化けを防ぐため、文字のアウトライン化を必ず行ってください。
●イラストレーターによる文字のアウトライン化の手順
1.メニュー【設定】→【すべてを選択】
2.メニュー【書式(文字)】→【アウトラインを作成】
を選択し文字をアウトライン化してください。
※【文字or書式】→【フォントの検索・置換】を選択し
使用中のフォントが残っていないか、必ず確認してください。


⑧画像データの解像度は300〜350dpi以上で作成してください。

⑨画像は統合してEPSバイナリ形式、またはEPS-JPEGで保存してください。

⑩リンクした画像は全て埋め込みをするか、入稿時に添付してください。
⑪イラストレーターの保存形式はAI形式で保存してください。
⑫必ず別名で保存してから、お客様が作業を行ったバージョンで保存してください。
保存したファイルは、開き直して、問題がない事をご確認ください。
※別名で保存を選択し「バージョン」がお使いのバージョンになっているのを確認の上、保存をしてください。

⑬名刺サイズは、タテ91mm×ヨコ55mm・タテ55cm×ヨコ91cmのみの受付となります。
断裁は機械処理のため、最大1mm〜1.5mmずれることがあります。

⑭画面上の色、またはお手持ちのカラープリンターの色(お客様のイメージされている色)は仕上がり色と
異なる場合があります。
⑮広範囲のベタ塗りや平網はムラが生じる場合があります。

色むら(例)
⑯折り加工の際、折り目部分にベタ塗りなどがあると、「紙割れ」のため紙の白が目立つことがありますので、折り目部分のデザインを避けてください。

紙割れ(例)